Use of cookies

Data privacy

This website uses cookies and similar functions to process end device information and personal data. The processing serves the integration of content, external services and elements of third parties, statistical analysis/measurement, personalized advertising and the integration of social media. Depending on the function, data may be passed on to third parties in the process and to third parties in countries where there is no adequate level of data protection and is processed by them, e.g. the USA. Your consent is always voluntary, not required for the use of our website and can be rejected or revoked at any time on our site.

We have updated our privacy policy. Please check your settings.
Legal notice | Privacy policy

Use of cookies

Data privacy settings

We have updated our privacy policy. Please check your settings.
Legal notice | Privacy policy
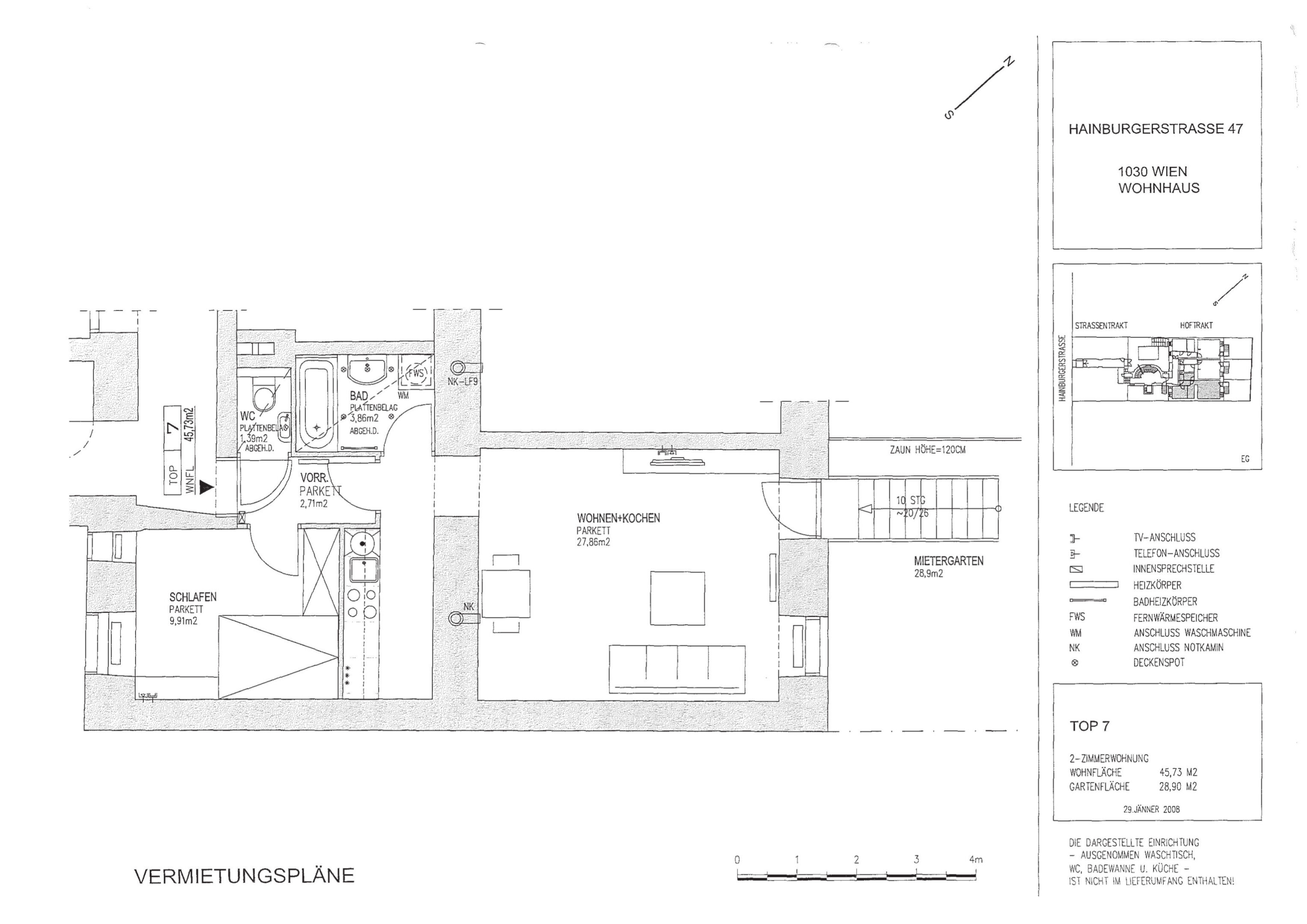
Hainburger Straße 47 - Top 7

Elegant 2-room flat with private garden - in a top location in the 3rd district

Key data

Address Hainburger Straße 47 - 1030 Vienna
Apartment # 7
Floor Ground floor
Rooms 2
Orientation NOW
Type of use For sale
Available from sofort
Year of construction 1910
Condition Mint condition
Property number 20926

Energy certificate

HER* 100.30 kWh/m² per year
Energy performance 1.86
Valid until 20/08/2033
*Heating energy requirement

Costs

Purchase price € 341,000.00
Land register entry 1.10 %
Property transfer tax 3.50 %
Running costs € 93.77
Sonstige monatliche Kosten € 15.00
VAT € 9.38
Monthly total rent € 118.15
Commission 3% of the purchase price plus 20% VAT.

Spaces

Living space 45.74 m²
Garden space 28.9 m²

Furnishings

  • customisable rooms
  • bathtub
  • fitted kitchen
  • floorboards
  • tiles
  • parquet
  • district heating
  • district heating
  • passenger elevator

Request description of the property

We look forward to hearing from you!

Please fill in this contact form. We will then send you a description of this property as soon as possible by email.

Other apartments of the project Go to project

Description of property

Hainburger Strasse

This magnificent apartment building from the turn of the century is located in a popular residential area of Vienna's 3rd district and fascinates with its authentic old building charm and a multitude of style-defining architectural details. The property comprises five classic standard storeys and two converted attic storeys. As part of the loft development, not only were new residential units created, but the common areas were also modernised and a passenger lift was installed. The special character of the building is reflected both in the elegantly structured stucco façade and in the interior: finely crafted brass banisters, historic staircases and stylish chandeliers give the building an extraordinary aura.

The location

If you want to combine urban living with convenience, practical infrastructure and a high quality of life, this is the place for you. All the facilities you need for your daily needs are in the immediate vicinity: supermarkets, pharmacies, schools, doctors, cafés and a post office are all within easy walking distance.

The Kardinal-Nagl-Platz U3 underground station is just a few steps away and takes you directly to the city centre (Stephansplatz) in less than 10 minutes. Further connections are provided by bus line 4A, the Nightline N29 and the Erdberg international bus station, which is just two stops away. The A4 motorway takes you quickly to Vienna-Schwechat Airport - ideal for frequent travellers.

In addition to urban comfort, the neighbourhood also impresses with its proximity to nature: the Danube Canal and the extensive Green Prater are just a few minutes' walk away and offer recreational space right in the city.

The flat - Top 7

This cosy 2-room flat is in a sought-after location with excellent public transport connections. With a living area of approx. 46 m², the flat offers enough space for discerning singles or couples. Particularly noteworthy is the private garden in the quiet inner courtyard, which can be reached via a staircase and makes this property a place of peace and relaxation.

The location

The area around Kardinal-Nagl-Platz was massively upgraded last year as a result of the extensive refurbishment of the park.

All shops for daily needs are in the immediate vicinity, as well as schools, doctors, pharmacies and a post office. The culinary offerings also leave nothing to be desired: whether traditional Austrian cuisine or a wide range of international restaurants, there is something for everyone.

The Kardinal-Nagl-Platz underground station is right in front of the building. The U3 underground line takes you to Stephansplatz in less than 10 minutes. The 4A bus line and the N29 night line are also less than 5 minutes away.

The international bus station "Erdberg" is only 2 stops away, and thanks to the motorway access to the A4 you can reach the airport "Schwechat" in about 15 minutes.

Nature lovers won't miss out either: both the Danube Canal and the green Prater park are within walking distance.

The house

This magnificent apartment building from the turn of the century impresses both from the outside and the inside with numerous architectural elements, such as a structured stucco façade, detailed brass railings and magnificent chandeliers in the stairwell.

The property consists of 5 standard storeys and 2 converted attic storeys.

As part of the loft conversion, a passenger lift was installed and the common areas refurbished. The historic character of the house has nevertheless been well preserved.

A highlight of the house are the completely dry cellar compartments, which are a rarity for the year of construction.

There is also a covered bicycle storage area in the inner courtyard and a laundry room, which is available to all owners.

Service charges

For the sake of good order, we would like to point out that, unless otherwise stated in the offer, a commission is payable on successful completion of the transaction at the rates stipulated in the Real Estate Agent Ordinance BGBI. 262 and 297/1996 - i.e. 3% of the purchase price plus 20% VAT or 2 gross monthly rents plus 20% VAT. This commission obligation also applies if you pass on the information provided to you to third parties. There is a close economic relationship with the seller.

The contract is drawn up and handled in trust by the law firm Dr Rumpf, A-1010 Vienna. The costs amount to 1.5 % of the purchase price plus 20 % VAT as well as cash expenses and notarisation. In the case of third-party financing, the fee increases to 1.8 % of the purchase price plus 20 % VAT, cash expenses and notarisation.

This text has been translated automatically. No liability is assumed for the accuracy and completeness of the translation. Changes and typographical errors reserved.

Fee exemption for your new home

Benefit now from the fee exemption as part of the ‘Wohnbau Offensive’! When purchasing a condominium, the land register fee (1.1%) and lien registration fee (1.2%) are waived up to an assessment basis of 500,000 euros. This regulation applies to residential properties that are used as a main residence and serve to fulfil an urgent housing need, with a purchase price of up to 2 million euros.

Your contact

Our real estate experts would be happy to advise you.
We look forward to hearing from you!

Lucas Carlsen

Real estate brokerage


+43 1 607 58 58 80 l.carlsen@3si.at

Contact

We look forward to hearing from you!

Your inquiry relates to the following property: Hainburger Straße 47 - 1030 Vienna - Top 7

Contact

We look forward to hearing from you!

You are welcome to contact us by phone or through our contact form.

Phone number : +43 1 607 58 58