Use of cookies

Data privacy

This website uses cookies and similar functions to process end device information and personal data. The processing serves the integration of content, external services and elements of third parties, statistical analysis/measurement, personalized advertising and the integration of social media. Depending on the function, data may be passed on to third parties in the process and to third parties in countries where there is no adequate level of data protection and is processed by them, e.g. the USA. Your consent is always voluntary, not required for the use of our website and can be rejected or revoked at any time on our site.

We have updated our privacy policy. Please check your settings.
Legal notice | Privacy policy

Use of cookies

Data privacy settings

We have updated our privacy policy. Please check your settings.
Legal notice | Privacy policy
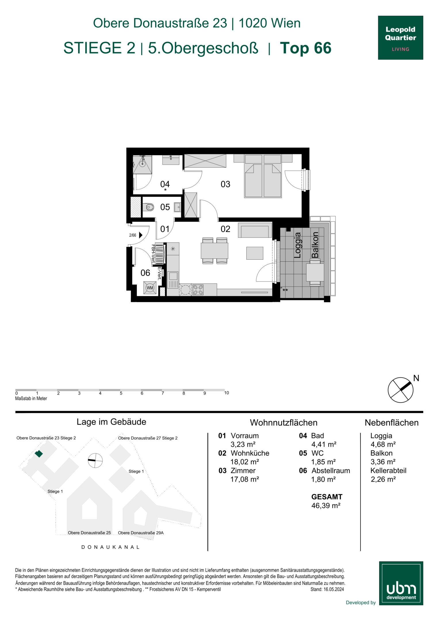
Obere Donaustraße 23 - Top 2/66

Efficient room solution at premium level - 2 rooms in a top urban location

Key data

Address Obere Donaustraße 23 - 1020 Vienna
Apartment # 66
Staircase 2
Floor 5. floor
Rooms 2
Orientation NO
Type of use For sale
Year of construction 2025
Condition First-time use
Property number 22057

Energy certificate

HER* 20.00 kWh/m² per year
Energy performance 0.62
Valid until 15/12/2032
*Heating energy requirement

Costs

Purchase price € 501,000.00
Land register entry 1.10 %
Property transfer tax 3.50 %

Spaces

Living space 46.39 m²
Balcony area 3.36 m²
Loggia space 4.68 m²

Furnishings

  • shower
  • open kitchen
  • tiles
  • parquet
  • underfloor heating
  • geothermal energy
  • air source heat pump
  • air conditioning
  • passenger elevator
  • parking-covered
  • balcony/terrace facing northwest
  • barrier-free
  • sauna
  • laundry room
  • wellness area
  • security cam
  • storage room
  • bicycle storeroom
  • flat roof

Request description of the property

We look forward to hearing from you!

Please fill in this contact form. We will then send you a description of this property as soon as possible by email.

Other apartments of the project Go to project

Description of property

Obere Donaustraße 23 | 1020 Vienna

Here you are not just buying a flat, but an upgrade for your life. Each individual flat has private open spaces - spacious balconies, sheltered loggias or extensive terraces extend your living space into the open air. Floor-to-ceiling windows allow plenty of light into the rooms and create an atmosphere of spaciousness and elegance.
Completion April 2026

COMMISSION-FREE FOR THE BUYER!

Highlights & features: design meets comfort

  • Perfect climate: underfloor heating, underfloor temperature control in summer
  • Sustainability: energy supply via geothermal energy and photovoltaics
  • Light & air: Floor-to-ceiling wood-aluminium windows, electrically operated external blinds, roller shutters on the ground floor
  • Security & technology: Video intercom system, security camera and a "smart-ready" system installed.
  • High-speed internet: fibre optic cables
  • Family & kids: car-free zone on the surface, protected playgrounds for small children

More than just living: The community features included

  • Co-working space
  • High-end gym with modern equipment and yoga zone
  • Sauna area that can be reserved privately
  • Communal terraces
  • Parcel locker system
  • Dog & Bike Wash Station - room with bike and dog wash area and workbench
  • Neighbourhood app
  • Mobility Point - there is a sharing service for cars and e-bikes directly in the neighbourhood
  • Laundry rooms

The project in figures (Obere Donaustraße 23)

  • Building structure: 2 staircases
  • Flat sizes: from approx. 34 m² to 108 m²
  • Number of rooms: Efficient 1.5 to 4 rooms
  • Room height: generous approx. 2.60 m
  • Underground car park
  • Visitor parking spaces in the underground car park
  • Energy supply: via geothermal energy and photovoltaics

Your exclusive "short cut" to the Augarten and connectivity: everywhere in 5 minutes

  • Building 23 has a passageway towards Augarten
  • Public transport connections: U4 underground station "Roßauer Lände", tram 31
  • In a few minutes in the city centre (Schottenring)

Completion is planned for April 2026

Individual remodelling work such as closing walls, installing doors, plasterboard decorations or changing the bathtub for a shower can be commissioned separately on request.

Further available flats can be found in the attached price list and you are welcome to contact us in this regard.

The contract drafting and escrow processing is bound to the law firm Saxinger Rechtsanwalts GmbH, Wächtergasse 1, 1010 Vienna. The costs amount to 0.9 % of the purchase price plus 20 % VAT. The cash expenses are included in the fee. The notarisation costs amount to €400 or €450 each incl. VAT if a pledge deed is notarised and signed.

Renderings: Copyright Squarebytes

Are you thinking about selling your property?
We achieve the best possible price for you - professionally, discreetly and efficiently.
On request, we can also take care of financing, insurance and all other steps.
Enquire now with no obligation!

Top 66 - Staircase 2

This modern flat is located on the 5th floor. The unit has a usable living space totalling 46.39 m² and also offers a 4.68 m² loggia and 3.36 m² balcony.

The room layout in detail:

  • Kitchen/living room
  • bedroom
  • Bathroom en suite with shower
  • separate toilet
  • entrance hall
  • storeroom
  • balcony

This flat is ideal as a cosy home or as an investment.

Purchase price overview:

  • Investor price: € 501,000 (net + 20% VAT)

  • Owner-occupier price: € 551,000 (gross)

THE PROPERTY IS BEING SOLD FREE OF COMMISSION.

We would like to point out that there is a close family or economic relationship between the agent and the third party to be brokered.

The agent acts as a dual broker.

This text has been translated automatically. No liability is assumed for the accuracy and completeness of the translation. Changes and typographical errors reserved.

Fee exemption for your new home

Benefit now from the fee exemption as part of the ‘Wohnbau Offensive’! When purchasing a condominium, the land register fee (1.1%) and lien registration fee (1.2%) are waived up to an assessment basis of 500,000 euros. This regulation applies to residential properties that are used as a main residence and serve to fulfil an urgent housing need, with a purchase price of up to 2 million euros.

Your contact

Our real estate experts would be happy to advise you.
We look forward to hearing from you!

Karoline Szczepankiewicz

Real estate brokerage


+43 1 607 58 58 55 k.szczepankiewicz@3si.at

Contact

We look forward to hearing from you!

Your inquiry relates to the following property: Obere Donaustraße 23 - 1020 Vienna - Top 2/66

Contact

We look forward to hearing from you!

You are welcome to contact us by phone or through our contact form.

Phone number : +43 1 607 58 58