Klausgasse 46: Traditionelles Wohnen mit Wiener Charme
Eckdaten
| Adresse | Klausgasse 46 - 1160 Wien |
|---|---|
| Top | 2-3 |
| Etage | Erdgeschoß |
| Zimmer | 2,5 |
| Ausrichtung | W |
| Nutzungsart | Kauf |
| Verfügbar ab | sofort |
| Baujahr | 1897 |
| Zustand | Sanierungsbedürftig |
| Objektnummer | 21420 |
Energieausweis
| HWB | 201,10 kWh/m²a |
|---|---|
| Energieeffizienz | 2,83 |
| Gültigkeit | 09.10.2033 |
Kosten
| Kaufpreis | € 119.000,00 |
|---|---|
| Grundbucheintrag | 1,10 % |
| Grunderwerbsteuer | 3,50 % |
| Provision | 3% des Kaufpreises zzgl. 20% USt. |
Flächen
| Wohnfläche | 51,12 m² |
|---|
Ausstattung
- Dusche
- Bad mit Fenster
- Einbauküche
- Fliesen
- Laminat
- Etagenheizung
- Gas
- Gäste-WC
Exposé anfordern
Wir freuen uns auf Ihre Anfrage!
Füllen Sie bitte dieses Kontaktformular aus. Im Anschluss erhalten Sie das Exposé zu dieser Immobilie umgehend per E-Mail zugeschickt.
Objektbeschreibung
Charmanter Altbau in der Klausgasse 46 – Wohnen mit Geschichte im Herzen von Ottakring
Willkommen in Ihrem neuen Zuhause im beliebten 16. Wiener Gemeindebezirk!
Die liebevoll renovierte Jahrhundertwende-Liegenschaft in der Klausgasse 46 vereint klassischen Altbau-Charme mit modernem Wohnkomfort. In einer ruhigen Seitengasse gelegen, genießen Sie hier ein angenehmes Wohngefühl in urbaner Umgebung – ideal für Singles, Paare und Familien gleichermaßen.
Zum Verkauf stehen insgesamt zwölf stilvolle 1- bis 3-Zimmer-Wohnungen mit Größen zwischen ca. 33 m² und ca. 100 m² sowie ein großzügiges Lager im Kellergeschoß.
Die meisten Einheiten präsentieren sich als Erstbezug nach hochwertiger Sanierung und überzeugen durch clever durchdachte Grundrisse, sowie klassische Altbaudetails wie hohe Räume und große Fenster, die für viel Lichteinfall sorgen. Auch die gebrauchten Einheiten im Haus präsentieren sich als attraktive Optionen für Baumeister, Sanierer oder leidenschaftliche Hobby-Handwerker. Mit etwas handwerklichem Geschick und einem Gespür für Gestaltung lassen sich hier wahre Schmuckstücke schaffen.
Die ruhige Mikrolage bietet eine perfekte Balance zwischen städtischer Infrastruktur und Erholungswert. In unmittelbarer Nähe finden sich zahlreiche Einkaufsmöglichkeiten, Restaurants sowie Einrichtungen des täglichen Bedarfs – Ärzte, Apotheken, Banken, Kindergärten und Schulen.
Die ausgezeichnete Verkehrsanbindung durch die nahegelegene U-Bahnlinie (U3 Ottakring), diverse Bus-, Straßenbahn- und Schnellbahnverbindungen ermöglicht eine rasche Erreichbarkeit des Stadtzentrums und anderer Bezirke. Für Freizeit und Bewegung in der Natur ladet der Wilhelminenberg zum Spazieren, Sporteln und Entspannen ein.
Ob als Eigenheim oder Anlageobjekt – diese Immobilie bietet vielfältige Möglichkeiten in einer der aufstrebentsten Wohngegenden Wiens.
Lassen Sie sich diese Gelegenheit nicht entgehen und überzeugen Sie sich selbst von der charmanten Atmosphäre und der hohen Wohnqualität in der Klausgasse 46!
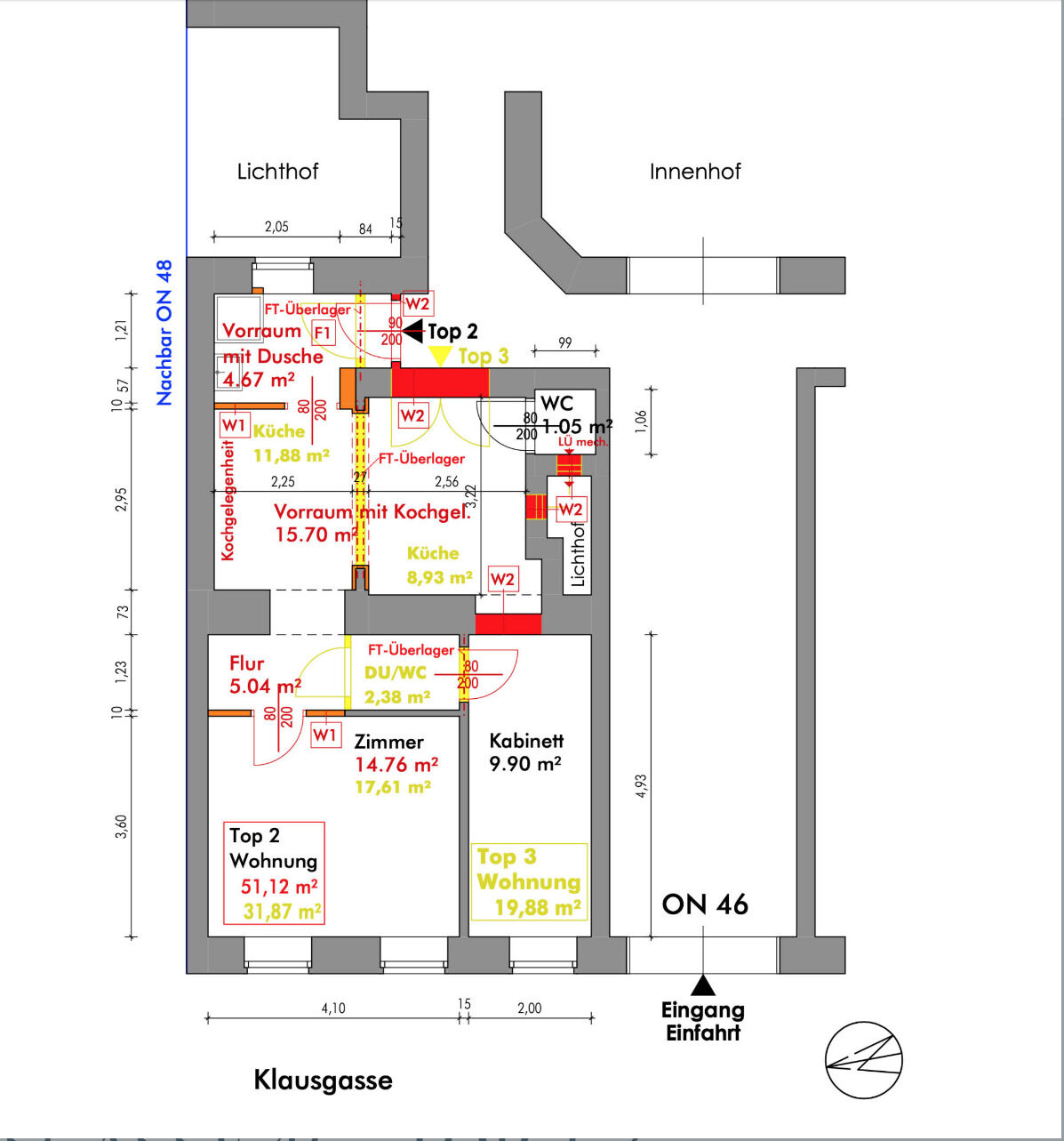
Top 2-3 im Erdgeschoss
Diese sanierungsbedürftige 2 Zimmer-Wohnung befindet sich im Erdgeschoss, verfügt über eine Wohnfläche von ca. 51m² und teilt sich wie folgt auf:
- Vorraum mit Küche
- Badezimmer mit Dusche, Waschbecken und Waschmaschinenanschluss mit Fenster
- Getrenntes WC
- Zimmer
- Kabinett
Nebenkosten
Der guten Ordnung halber halten wir fest, dass, sofern im Angebot nicht anders vermerkt, bei erfolgreichem Abschlussfall eine Provision anfällt, die den in der Immobilienmaklerverordnung BGBI. 262 und 297/1996 festgelegten Sätzen entspricht - das sind 3% des Kaufpreises zzgl. 20% MwSt. Diese Provisionspflicht besteht auch dann, wenn Sie die Ihnen überlassenen Informationen an Dritte weitergeben. Es besteht ein wirtschaftliches Naheverhältnis zum Verkäufer.
Die Vertragserrichtung und Treuhandabwicklung ist gebunden an die Kanzlei RA Mag. Michael Delitz, Kärntner Ring 10, 1010 Wien. Die Kosten betragen 1,5 % des Kaufpreises zzgl. 20 % USt. sowie Barauslagen und Beglaubigung.
Sämtliche Ihnen hiermit übermittelte Angaben wurden uns, seitens des Abgebers bekannt gegeben. Eine Garantie auf Richtigkeit und Vollständigkeit können wir nicht übernehmen.
Wir weisen darauf hin, dass zwischen dem Vermittler und dem zu vermittelnden Dritten ein familiäres oder wirtschaftliches Naheverhältnis besteht.
Der Vermittler ist als Doppelmakler tätig.
Gebührenbefreiung für Ihr neues Zuhause
Ihr Ansprechpartner
Unser Immobilienexperte berät Sie gerne persönlich. Wir freuen uns über Ihre Anfrage!
Kontakt
Wir freuen uns auf Ihre Anfrage!
Ihre Anfrage bezieht sich auf folgendes Objekt: Klausgasse 46 - 1160 Wien - Top 2-3
Provisionshinweis: Der guten Ordnung halber halten wir fest, dass bei einem erfolgreichen Geschäftsabschluss eine Provisionszahlung an die 3SI Makler GmbH in der zuvor ausgewiesenen Höhe zu entrichten ist. Die Höhe der Provision entspricht den Bestimmungen der geltenden Verordnung des Bundesministers für wirtschaftliche Angelegenheiten über Standes- und Ausübungsregeln für Immobilienmakler. Diese Provisionspflicht besteht auch dann, wenn Sie die Ihnen überlassenen Informationen an Dritte weitergeben. Letztlich weisen wir darauf hin, dass wir als Doppelmakler tätig sind und ein familiäres/wirtschaftliches Naheverhältnis zwischen der 3SI Makler GmbH und der Verkäuferin besteht.